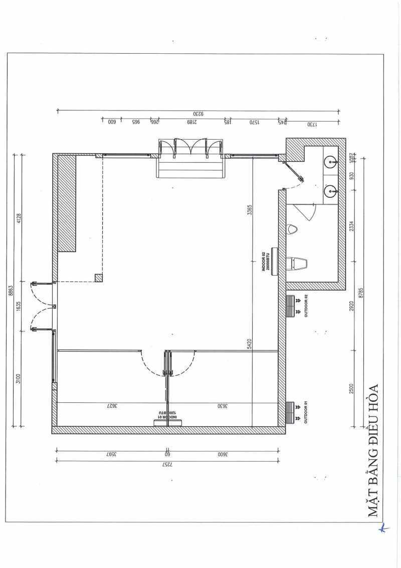
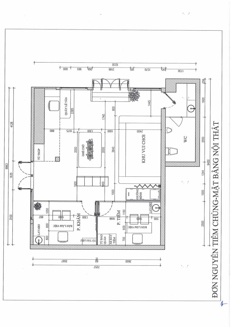
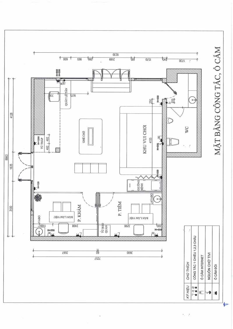
Thông báo số 582 về nhu cầu thực hiện gói thầu sửa chữa Đơn nguyên tiêm chủng khoa Nhi

  • 2026/03/30 06:26